电伴热带作为零下气温环境下的混凝土防冻养护,业内以出现了两种不同观点。一种是华体会体育网国米合作伙伴直接铺设到混凝土中,对混凝土直接伴热保温;另一种是将华体会体育网国米合作伙伴铺设在混凝土的钢模板外部,利用热辐射原理对钢模板加热,再将热量传导到混凝土来保温。我们就针对这两种观点,来阐述电伴热带作为冬季混凝土养护的防冻保温是否可行?
这里为什么会说到使用自限温电热带来养护混凝土?因为华体会体育网国米合作伙伴具有自主调节伴热温度性能,相比同样材质的恒功率成本要略低些,再加上其使用长度可根据需要任意剪切,所以较为适用在混凝土的养护的应用。
来看第一种观点,如果电伴热带直接铺设在混凝土中,等混凝土干后,电热带也就不能拿出来了,这也就导致电热带不能再利用,增加了成本。如果是使用在路面的混凝土中,前期可以作为混凝土的养护防冻保温,后期可作为路面的融雪或解冻,这样的利用效率较高。
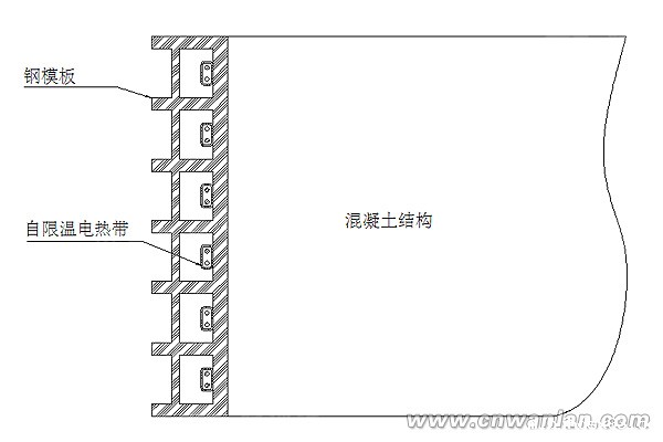
再来看第二种观点,型建筑中,如桥梁、大坝、隧道、场馆等,混凝土浇筑用的钢模板外侧有格状的筋骨,无法安装电热带,即使安装了,也无法完全到受热面,随然使电热带可再利用,但是,基本达不到伴热保温的效果。
从上述两种不同的观点分析来看,自限温电热带是可以起到冬季混凝土防冻养护的作用,问题是要解决安装的问题。路面的融雪和混凝土防冻养护相结合是很理想的使用效果,建筑的上的混凝土防冻养护,建议修改钢模板的结构,修改样式如下图,这样才能使电伴热带起到冬季混凝土养护的防冻保温作用。


